一、概述
DRB-P系列電動潤滑泵適用于潤滑頻率高,配管長度大,潤滑點密集的單、雙線干稀油集中潤滑系統中,作為供給潤滑脂的輸送裝置。還可配備移動小車、膠管、油槍和電纜組成移動式電動潤滑泵裝置,適用于潤滑頻率低,潤滑點少,給油量大,不便于采用集中潤滑的單機設備,進行移動供脂潤滑。
該系列潤滑泵為電動高壓柱塞式。工作壓力在公稱壓力范圍內可任意調整,有雙重過載保護。貯油桶具有油位自動報警裝置,潤滑泵若配備電氣控制箱能實現雙線集中潤滑系統全自動控制,并對系統實現監視。
|
|
|
|
二、技術參數
|
型 號
|
公稱壓力MPa
|
額定給油量mL/min
|
貯油器容積L
|
電機
|
適用環境溫度
|
重 量kg
|
|
功率kW
|
電壓
|
|
DRB1-P120Z
|
40
|
120
|
30
|
0.37
|
380
|
0~80
|
56
|
|
DRB2-P120Z
|
0.75
|
-20~80
|
64
|
|
DRB3-P120Z
|
60
|
0.37
|
0~80
|
60
|
|
DRB4-P120Z
|
0.75
|
-20~80
|
68
|
|
DRB5-P235Z
|
235
|
30
|
1.5
|
0~80
|
70
|
|
DRB6-P235Z
|
60
|
74
|
|
DRB7-P235Z
|
100
|
82
|
|
DRB8-P365Z
|
365
|
60
|
74
|
|
DRB9-P365Z
|
|
100
|
82
|
使用介質為錐入度不低于220(25℃,150g)1/10mm 的潤滑脂(NLGI0#-3#)和粘度等級大于N68 的潤滑油。
|
|
|
|
三、型號說明
|
|
|
|
|
|
|
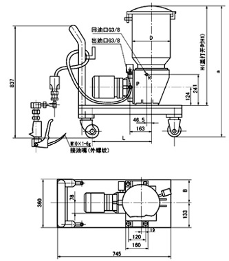
五、外形尺寸
|
|
|
|
規格
|
D
|
H
|
H1
|
B
|
L
|
L1
|
a
|
|
貯油筒
|
30L
|
310
|
760
|
1140
|
200
|
—
|
233
|
1045
|
|
60L
|
400
|
810
|
1190
|
230
|
—
|
278
|
1095
|
|
100L
|
500
|
920
|
1200
|
280
|
—
|
328
|
1205
|
|
電機功率
|
0.37kW.80r/min
|
—
|
—
|
—
|
—
|
500
|
—
|
—
|
|
0.75kW.80r/min
|
—
|
—
|
—
|
—
|
563
|
—
|
—
|
|
1.5kW.160r/min
|
—
|
—
|
—
|
—
|
575
|
—
|
—
|
|
1.5kW.250r/min
|
—
|
—
|
—
|
—
|
575
|
—
|
—
|
|
|
|

|
|
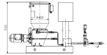
(1)潤滑泵的外形尺寸 (2)帶小車潤滑裝置外形尺寸
|
|
|
|
|
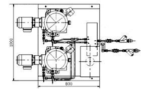
(3)雙泵帶電動換向閥潤滑裝置外形尺寸
|
|
|
六、工作原理
減速電機固定于帶泵裝置的連接法蘭上,通過驅動偏心軸帶動滑叉作直線往復運動,并帶動螺旋壓油板和刮油板順時針方向旋轉(使用潤滑油無此機構),經攪動變軟的潤滑脂均勻地被壓到泵裝置吸油口周圍。
泵體內二組活塞,每組活塞由1個工作塞和2個控制活塞組成,當一組活塞中的工作活塞完成吸油過程時,另一組活塞中的工作活塞則把潤滑脂壓向出油口。如下圖所示,當滑叉向左運動時,上組活塞完成吸油,下組活塞完成壓油,開始新的工作循環。這時下組活塞1、2向左運動,活塞2在彈簧力作用下到達極限位置關閉出口,而活塞1繼續向左運動,這時活塞2和1之間形成真空,其真空度隨活塞1的左移不斷增大,滑叉運動到極限位置活塞1打開吸油口,潤滑脂從吸油口吸入,如彈簧力不足,沒將活塞2推到極限位置,此時推桿3會在滑叉的推動下強制地把活塞2壓到極限位置,同時上組活塞1、2、3向左運動,活塞1先關閉吸油口,被吸入的潤滑脂在活塞1的推動下向左移動,當活塞2把出油口打開時,活塞2和推桿3 的運動也就停止,活塞1繼續左移,把潤滑脂從出油口壓出,活塞1、2接觸滑叉也已運動到極限位置完成半個循環的工作,如此周而復始地循環,二組活塞交替地將潤滑油脂從出油口壓送出來,壓出的潤滑脂經泵裝置連接法蘭上的過濾器過濾后向系統供送。
|
|
|
使用要領
1、該系列電動潤滑泵應安裝在環 境合適、灰塵少,便于調整、檢查、維修和拆洗及方便補脂的地方。
2、該系列電動潤滑泵應盡可能布置在系統的中心位置,縮短系統配管長度,保持最低壓力降,使泵能產生足以克服潤滑點背壓的壓力。
3、泵調壓閥的設定壓力,可以在0~40MPa范圍內任意調節,在使用時不允許超過泵的公稱壓力(40MPa)。
4、泵出油口處過濾器的過濾網要定期清洗,防止堵塞。
5、若由于系列某種故障原因,使壓力達到約50MPa時,保險片即破裂,要查明原因并排除后再裝入新的保險片。
6、向貯油器內補充潤滑劑必須使用DJB-H1.6型電動補脂泵從貯器補脂口加入。
7、貯油器內薄膜式容量指示器只適用于潤滑脂,使用介質為潤滑油時,必須調換成浮球式容量指示器。
8、電動減速機初用二個月必須從排氣塞孔補充適量的3#二硫化鉬潤滑 脂,以后每隔四個月補充一次。
9、該系列電動潤滑泵為室內安裝型,在室外或環境惡劣的場合使用時,必須采取防護措施。
訂貸說明
1、訂購移動式電動潤滑泵裝置,必須在合同中注明所配膠管長度及電纜長度,不注的均按電纜10米,膠管3米供貨。
2、本系列電動潤滑泵配用以下三種形式標準電控箱,可根據不同控制要求選擇訂購。
2.1 GDK01型無監控電控箱
2.2 GDK02型有監控電控箱
2.3 GDK03型有監控,全自動控制電控箱
3、該系列電動潤滑泵為短時間間隔工作制,有戶如需長時間連接工作請合同中注明。
隨供備件
1、保險片 10片(存放于泵出油口下側的螺孔內)
2、過濾網 2套
|